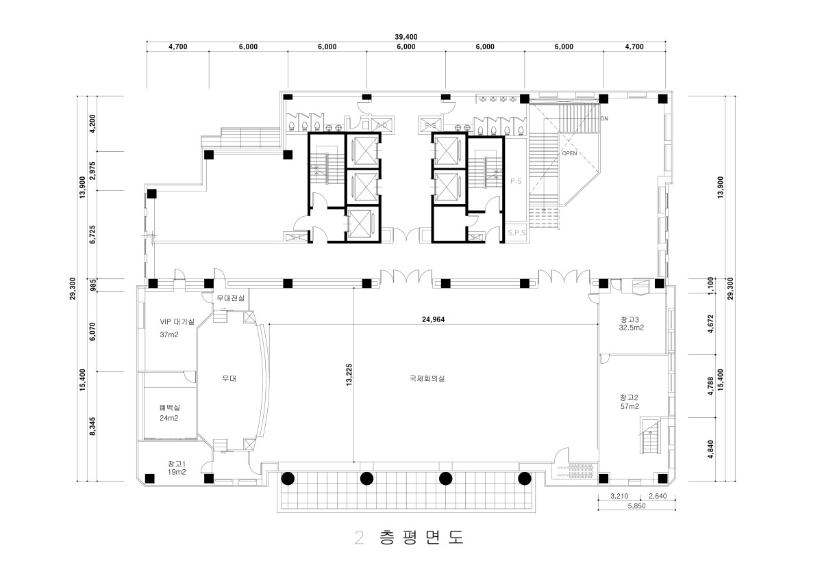
국제회의실 국제회의실 평면도 페이지 정보 작성자 관리자 댓글 0건 조회 1,260회 작성일 24-01-29 23:16 본문 국제회의실 평면도 검색 목록 목록 댓글목록 댓글목록 등록된 댓글이 없습니다. Total 6 / 1 page 검색 열기 닫기 게시물 검색 검색대상 제목+내용 제목 내용 회원아이디 작성자 검색어 필수 검색 시설 안내 회의실 안내 카테고리 전체열린 분류 국제회의실무대 및 현수막 사이즈설치소품VIP 대기실로비비상대피안내도 회의실 안내 목록 6 H인기글 조회 126 작성일 08-28 작성자 관리자 국제회의실 5 H인기글 조회 108 작성일 08-28 작성자 관리자 국제회의실 4 H인기글 조회 121 작성일 08-13 작성자 관리자 국제회의실 3 H인기글 조회 134 작성일 08-13 작성자 관리자 국제회의실 2 H인기글 조회 116 작성일 08-13 작성자 관리자 국제회의실 열람중 H인기글 조회 1261 작성일 01-29 작성자 관리자 국제회의실 평면도 목록 사이드메뉴 열기 닫기 페이지 상단으로 이동